vi er medlem af dansk håndværk med garanti

Vælg den helt rigtige tilbygnings til parcelhuset

Vi tilbyder forskellige tilbygninger til Dit/Jeres bolig, som alle funktionelle og med en god planløsning. 

Det er vigtigt at gennemtænke en tilbygningen grundigt fra starten og vi kan hjælpe med råd og vejledning hele vejen igenne design fasen. 

 

Tilbygningen kan afspejle huset linjer og arkitektur

På mange parcelhuse er det ofte en god ide at bygge en tilbygning som en kontrast til huset, så den træder frem som en detalje på huset. 

Man kan altid overveje om taget skal være med høj rejsning  eller med fladt tag. Fordelen ved fladt tag er at udtrykket bliver mere enkelt.

Tilbygningens facader kan vælges i mange forskellige udtryk elt efter økonomi og det færdige udtryk.

Vi hjælper hele vejen

Vi hjælper med design fasen af tilbygningen fra starten og med ideer og plantegninger som giver et tydeligt billeder af hvordan det færdige resultet bliver.

Parcelhuset har mange muligheder og det er vigtigt at få alle detaljer med tidligt i processen. 

Vi tilbyder en komplet løsning, hvor vi hjælper med myndighedstegninger og visualiseringer til de tekniske løsninger og muligheder. 

 

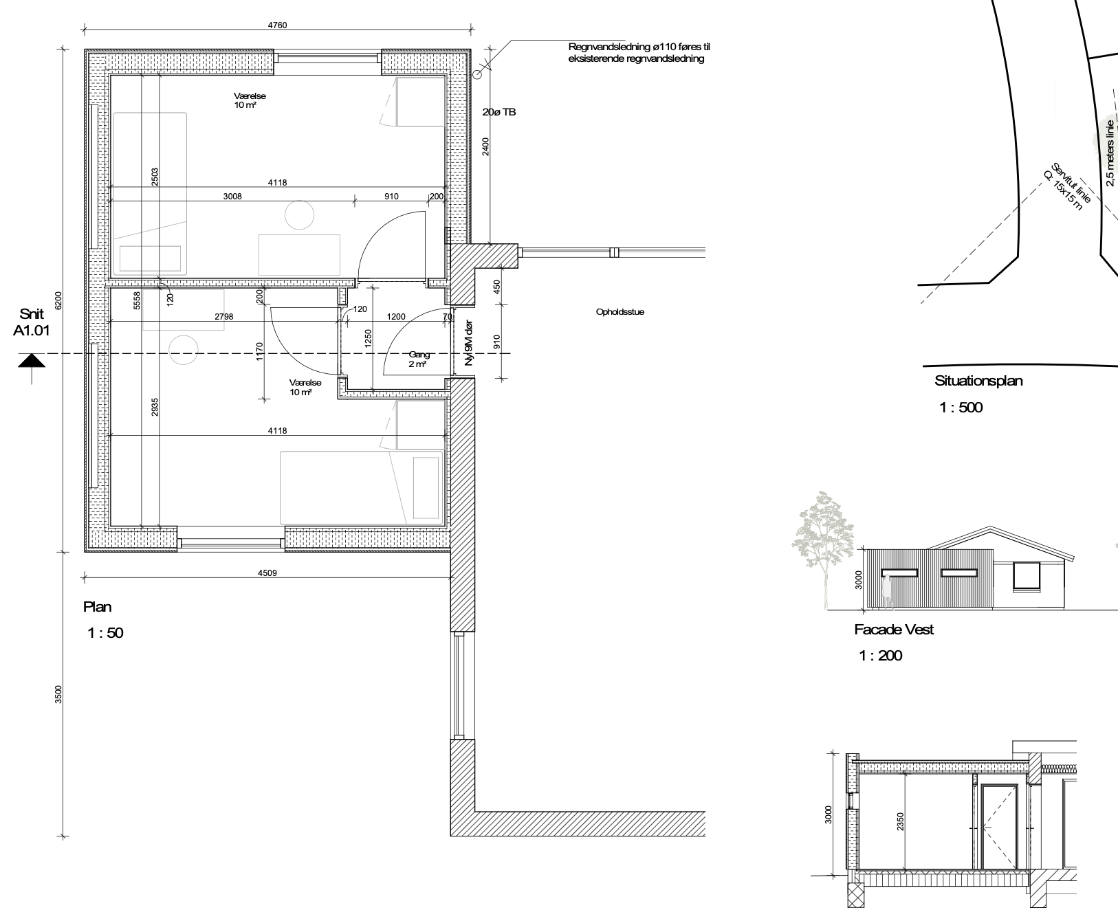
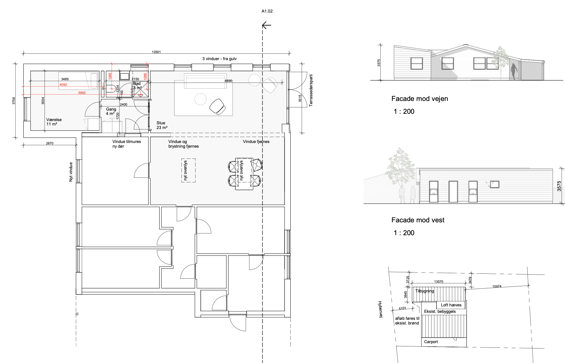
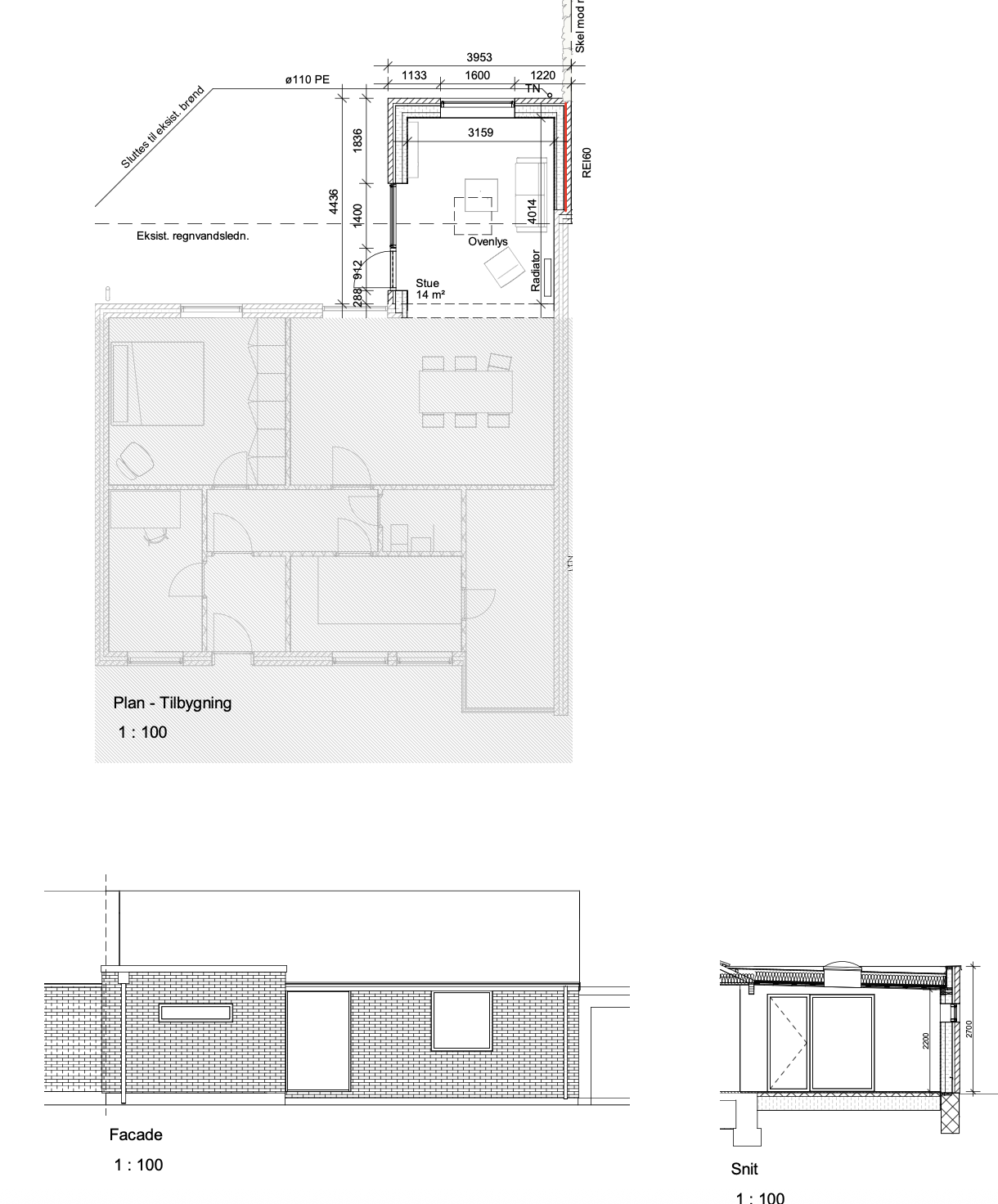
Eksempler på tilbygninger

Hos Kochhus & Co er det kunden, der er en bygherre.